Unijet- 7 Fabric Dyeing Machine

About
About

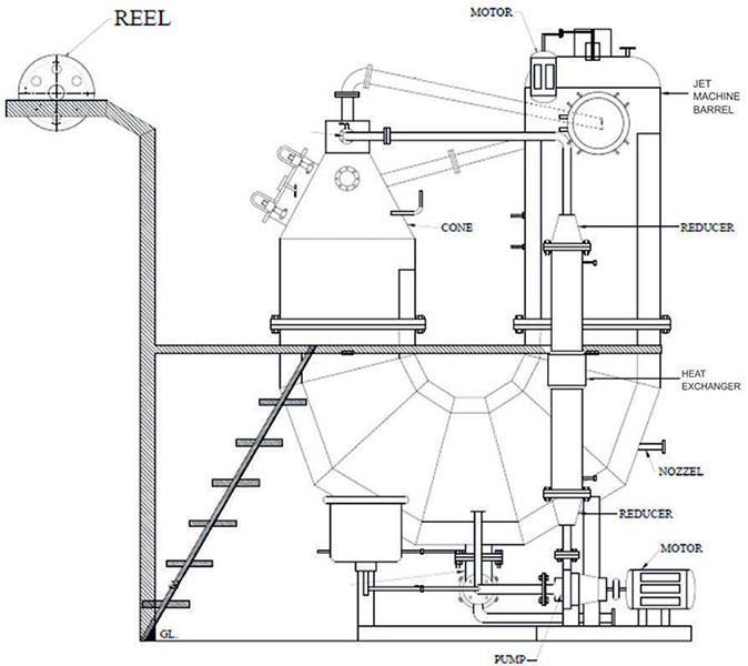
Fabric dyeing Machine is defined as an efficient heat exchanger required for fast heating and cooling procedure. Finest grade of stainless steel is used for the fabrication of machine for optimal dye liquor circulation. This machine is equipped with a magnetic level indicator that is duly calibrated to achieve correct liquor measurement.